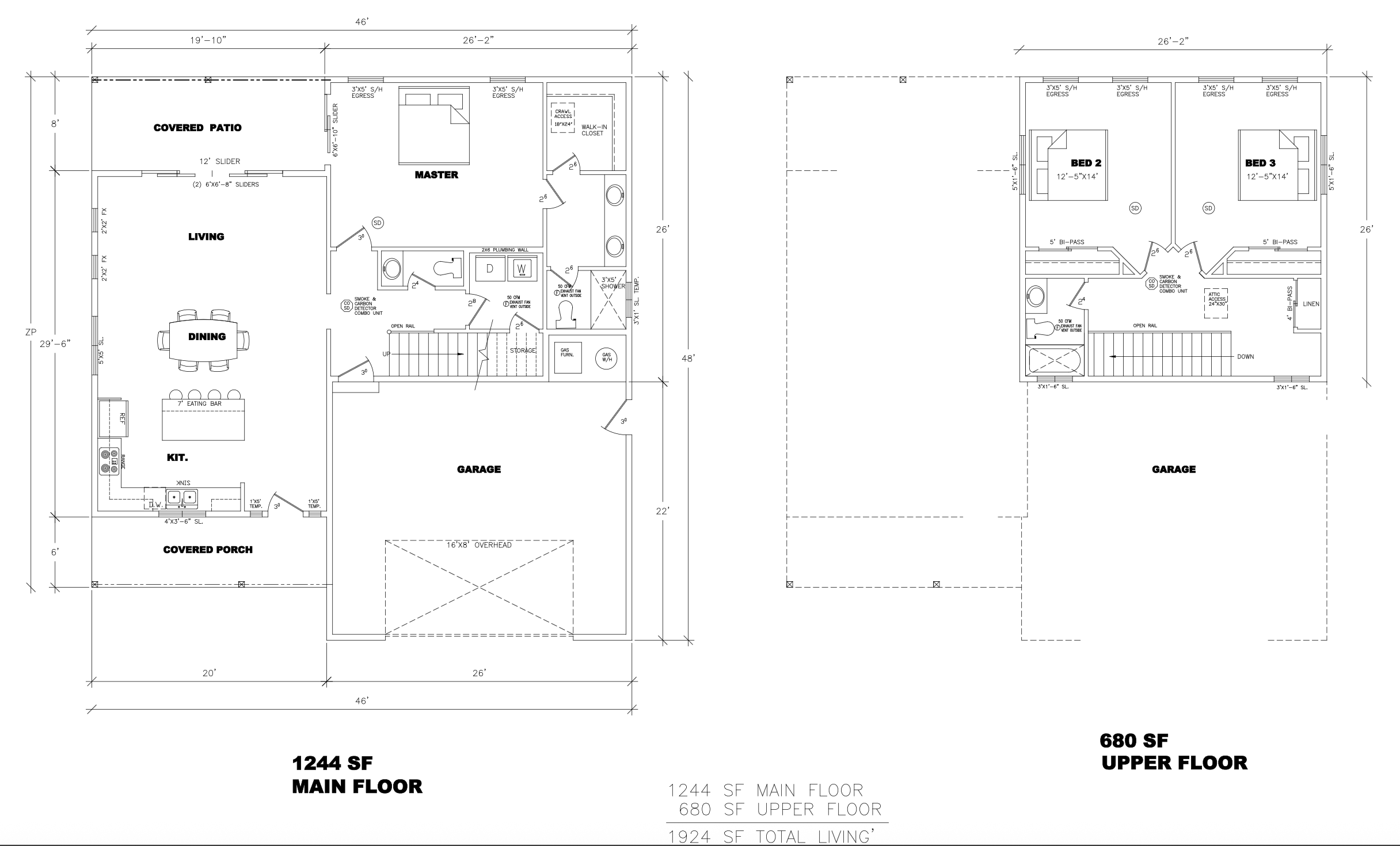
At The Wolf, comfort and character come together in a way that feels instantly like home. Set within The Lodges at Providence, just minutes from Sandpoint, this thoughtfully designed 1,924 sq ft home offers the perfect balance of gathering space and private retreat. With a main-floor primary suite and two additional bedrooms upstairs, the layout creates flexibility for both everyday living and weekend hosting. The main level invites connection, where the kitchen, dining, and living spaces flow together beneath warm natural light and around a cozy fireplace, a kind of space that naturally draws people in. Upstairs, the additional bedrooms offer room for guests, kids, or quiet separation when needed. Outside, a covered front porch and rear patio create easy places to unwind after a day spent golfing at The Idaho Club, boating on Lake Pend Oreille, or skiing at Schweitzer. With a 2-car garage, mountain-inspired design, and the elevated finishes that define this community, The Wolf captures the ease and beauty of North Idaho living.
Year Built
2026
Bedrooms
3
Bathrooms
2.5
Square Ft.
1924
Acres
.25
Garages
2
Main Floor Master
Yes
AC
Yes
Floors
2
HOA/CCR
Yes
Water
City
Sewer
City
Want to take a tour of this property?
Fill in your details and we will contact you to confirm a time.